







Vilă single cu grădină – zona Șura Mică Sibiu
Sura Mica, Nord-Vest
184.000€ + TVA
Camere
5
Suprafata utila
121 mp
Suprafata construita
145.20 mp
Bai
3
Razvan Bolboaca
0773367642
Esti interesat de aceasta proprietate ?
- ID:P7631
- Nr. camere:5
- Nr. dormitoare:4
- S. utila:121.00 mp
- S. terase:18.18 mp
- S. construita:145.20 mp
- S. teren:469.00 mp
- Nr. bucatarii:1
- Nr. bai:3
- Nr. parcari:2
- Structura rezistenta:Caramida
- Regim inaltime:P+1
Descriere
Vă propunem spre vânzare o casă de tip single modernă, spațioasă și eficientă energetic, situată într-un ansamblu nou din Șura Mică, la doar câteva minute de Sibiu – o zonă liniștită, cu aer curat și acces facil către oraș.
Ansamblul Valletta Lane 2.0 este un cartier rezidențial modern, cu infrastructură completă, spații verzi și loc de joacă, care include case individuale și duplexuri de diferite tipuri, proiectate pentru confortul și nevoile fiecărei familii.
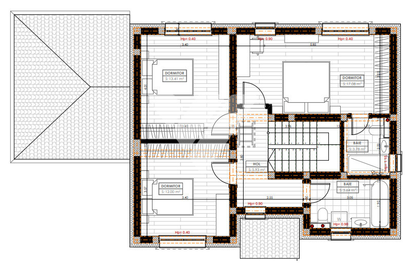
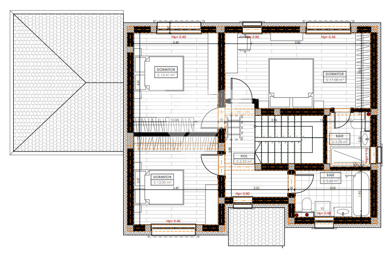
Vila single de tip 2 are o suprafață utilă de 121 mp și este amplasat pe un teren de 469 mp, cu grădină proprie de 367 mp, terasă acoperită și două locuri de parcare pavate în fața casei.
Compartimentare inteligentă:
- Living spațios + dining cu acces direct pe terasă
- Bucătărie separată
- un dormitor la parter
- 3 dormitoare la etaj
- 3 băi
- Holuri, spații de depozitare și pod generos
Stadiu de predare:
- Exterior la cheie – fațadă cu tencuială decorativă, gard alb stil american, alei și trotuare pavate;
- Interior la gri avansat – pereți tencuiți, gletuiți, amorsă; pardoseli cu șapă mecanizată; instalații electrice și sanitare complete (fără obiecte sanitare); centrală termică Ariston 24 kW; încălzire în pardoseală Uponor; tâmplărie PVC cu 3 foi de sticlă; ușă la intrare montată.
Structură și finisaje:
- Cadre din beton armat, zidărie portantă cărămidă 25 cm;
- Termoizolație polistiren 15 cm;
- Acoperiș tip șarpantă din lemn, țiglă ceramică gri;
- Terasă acoperită; glafuri exterioare; contoare montate la limita de proprietate.
Preț: 184.000 € +TVA
Modalități flexibile de plată acceptate:
- plată integrală prin transfer bancar;
- rate direct la dezvoltator până la 7 ani, avans minim 25%;
- plată în tranșe în funcție de stadiul lucrărilor;
- credit bancar, avans minim 20%;
- plată în criptomonede (EGLD, BTC, USDT și altele).
Aici viața de familie capătă o nouă dimensiune. Acest duplex îți oferă intimitate, spațiu și confort, într-un ansamblu modern, bine organizat, aproape de tot ce contează.
Valletta Lane 2.0 – echilibrul perfect între liniște și proximitatea orașului.
Sună chiar acum și programează o vizionare!
Citeste mai mult
Ansamblul Valletta Lane 2.0 este un cartier rezidențial modern, cu infrastructură completă, spații verzi și loc de joacă, care include case individuale și duplexuri de diferite tipuri, proiectate pentru confortul și nevoile fiecărei familii.
Vila single de tip 2 are o suprafață utilă de 121 mp și este amplasat pe un teren de 469 mp, cu grădină proprie de 367 mp, terasă acoperită și două locuri de parcare pavate în fața casei.
Compartimentare inteligentă:
- Living spațios + dining cu acces direct pe terasă
- Bucătărie separată
- un dormitor la parter
- 3 dormitoare la etaj
- 3 băi
- Holuri, spații de depozitare și pod generos
Stadiu de predare:
- Exterior la cheie – fațadă cu tencuială decorativă, gard alb stil american, alei și trotuare pavate;
- Interior la gri avansat – pereți tencuiți, gletuiți, amorsă; pardoseli cu șapă mecanizată; instalații electrice și sanitare complete (fără obiecte sanitare); centrală termică Ariston 24 kW; încălzire în pardoseală Uponor; tâmplărie PVC cu 3 foi de sticlă; ușă la intrare montată.
Structură și finisaje:
- Cadre din beton armat, zidărie portantă cărămidă 25 cm;
- Termoizolație polistiren 15 cm;
- Acoperiș tip șarpantă din lemn, țiglă ceramică gri;
- Terasă acoperită; glafuri exterioare; contoare montate la limita de proprietate.
Preț: 184.000 € +TVA
Modalități flexibile de plată acceptate:
- plată integrală prin transfer bancar;
- rate direct la dezvoltator până la 7 ani, avans minim 25%;
- plată în tranșe în funcție de stadiul lucrărilor;
- credit bancar, avans minim 20%;
- plată în criptomonede (EGLD, BTC, USDT și altele).
Aici viața de familie capătă o nouă dimensiune. Acest duplex îți oferă intimitate, spațiu și confort, într-un ansamblu modern, bine organizat, aproape de tot ce contează.
Valletta Lane 2.0 – echilibrul perfect între liniște și proximitatea orașului.
Sună chiar acum și programează o vizionare!
Specificatii
Curent
Apa
Canalizare
Gaz
Centrala proprie
Izolatie Exterior
Ferestre PVC
Usa intrare Metal
Spatiu depozitare
Curte