




Casa noua tip duplex 4 camere 3 bai teren 240 mp Selimbar Sibiu
Sibiu
245.000€
Camere
4
Suprafata utila
120 mp
Suprafata construita
135 mp
Bai
3
An constructie
2026
Bogdan Becher
0752634381
Esti interesat de aceasta proprietate ?
- ID:P7784
- Nr. camere:4
- Nr. dormitoare:3
- S. utila:120.00 mp
- S. construita:135.00 mp
- S. teren:239.00 mp
- Nr. bucatarii:1
- Nr. bai:3
- Nr. balcoane:1
- Nr. parcari:2
- An constructie:2026
- Structura rezistenta:Caramida
- Regim inaltime:P+1
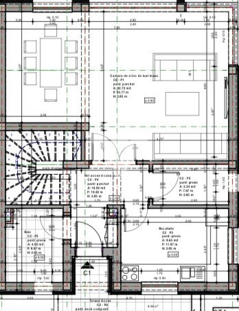
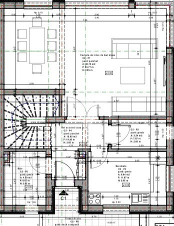
Descriere
Vă propunem spre vânzare o casă tip duplex, cu pereți dubli și izolație între unități, oferind intimitate și confort acustic. Imobilul se află în Selimbar, într-o zonă liniștită și apreciată la doar 5 minute de Shopping City, urmând să fie predat LA CHEIE la exterior și LA ALB la interior. Exista posibilitatea de predare la cheie la interior contracost.
Caracteristici principale:
Suprafață utilă: 120 mp.
Teren: 240 mp.
Curte liberă: aprox. 163 mp.
Compartimentare ideală pentru familie. Living generos. 3 dormitoare, Bucătărie separată. Baie principală + WC de serviciu si baie in dormitorul matrimonial Dotări și beneficii: Caracteristici importante ale proprietății: Acces din stradă asfaltată, cu iluminat public Zidărie exterioară din cărămidă de 30 cm, cu pereți dubli intre duplexuri și izolație din polistiren extrudat între zidării Fațadă izolată cu polistiren grafitat de 15 cm Izolație termică sub incălzirea din pardoseală: Acoperiș cu țiglă. Ferestre tripan (3 foi de sticlă) Încălzire în pardoseală cu centrală pe gaz. Izolație foarte bună și construcție solidă. Materiale de calitate, lucrări executate profesionist.
Avantaje suplimentare:
- Poziționare într-o zonă liniștită, cu acces facil către Sibiu
- Curte spațioasă, ideală pentru grădină, loc de joacă sau relaxare
- Casă luminoasă, eficientă energetic și economică pe termen lung.
Această proprietate reprezintă alegerea perfectă pentru cei care își doresc confort, intimitate, eficiență și un stil de viață modern într-o comunitate liniștită.
Pentru informații suplimentare și programarea unei vizionări, nu ezitați să ne contactați.
Citeste mai mult
Caracteristici principale:
Suprafață utilă: 120 mp.
Teren: 240 mp.
Curte liberă: aprox. 163 mp.
Compartimentare ideală pentru familie. Living generos. 3 dormitoare, Bucătărie separată. Baie principală + WC de serviciu si baie in dormitorul matrimonial Dotări și beneficii: Caracteristici importante ale proprietății: Acces din stradă asfaltată, cu iluminat public Zidărie exterioară din cărămidă de 30 cm, cu pereți dubli intre duplexuri și izolație din polistiren extrudat între zidării Fațadă izolată cu polistiren grafitat de 15 cm Izolație termică sub incălzirea din pardoseală: Acoperiș cu țiglă. Ferestre tripan (3 foi de sticlă) Încălzire în pardoseală cu centrală pe gaz. Izolație foarte bună și construcție solidă. Materiale de calitate, lucrări executate profesionist.
Avantaje suplimentare:
- Poziționare într-o zonă liniștită, cu acces facil către Sibiu
- Curte spațioasă, ideală pentru grădină, loc de joacă sau relaxare
- Casă luminoasă, eficientă energetic și economică pe termen lung.
Această proprietate reprezintă alegerea perfectă pentru cei care își doresc confort, intimitate, eficiență și un stil de viață modern într-o comunitate liniștită.
Pentru informații suplimentare și programarea unei vizionări, nu ezitați să ne contactați.
Specificatii
Curent
Apa
Canalizare
Gaz
Centrala proprie
Incalzire pardoseala
Izolatie Exterior
Vopsea lavabila
Faianta
Parchet
Gresie
Ferestre PVC
Ferestre Termopan
Usa intrare Metal
Usa interior Celulare
WC Serviciu
Bucatarie Nemobilata
Bucatarie Neutilata
Apometre
Contor gaz
Nemobilat