










Casa noua tip duplex 4 camere si teren 250 mp in Selimbar Sibiu
Selimbar, Central
250.000€
Camere
4
Suprafata utila
110 mp
Suprafata construita
130 mp
Bai
2
An constructie
2026
Bogdan Becher
0752634381
Esti interesat de aceasta proprietate ?
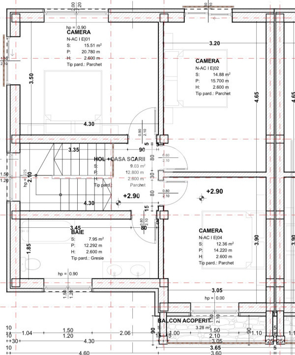
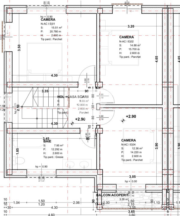
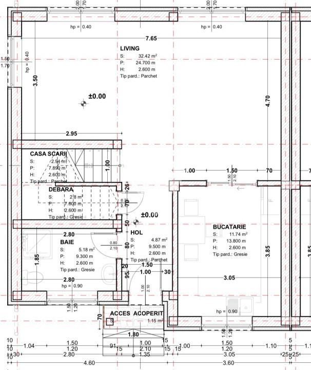
- ID:P7729
- Nr. camere:4
- Nr. dormitoare:3
- S. utila:110.00 mp
- S. construita:130.00 mp
- S. teren:250.00 mp
- Nr. bucatarii:1
- Nr. bai:2
- Nr. balcoane:1
- Nr. parcari:2
- Front stradal:15.00 m
- An constructie:2026
- Structura rezistenta:Caramida
- Regim inaltime:P+1
Descriere
Vă propunem spre vânzare o casă tip duplex, cu pereți dubli și izolație între unități, oferind intimitate și confort acustic.
Imobilul se află în Selimbar, într-o zonă liniștită și apreciată, și este în stadiu de constructie, urmând să fie predat la cheie la exterior și la alb în interior.
Caracteristici principale:
Suprafață utilă: 110 mp.
Teren: 250 mp.
Curte liberă: aprox. 150 mp.
Compartimentare ideală pentru familie. Living generos. 3 dormitoare, Bucătărie separată. Baie principală + WC de serviciu
Dotări și beneficii:
Caracteristici importante ale proprietății:
Acces din stradă asfaltată, cu iluminat public
Placă de beton armat inclusiv peste etaj
Zidărie exterioară din cărămidă Porotherm de 30 cm, cu pereți dubli intre duplexuri și izolație din polistiren extrudat între zidării
Fațadă izolată cu polistiren grafitat de 15 cm
Izolație termică sub încălzirea din pardoseală:
Acoperiș cu țiglă de beton Bramac Alpina P5
Structura acoperișului realizată din lemn tratat cu Bochemit
Ferestre tripan (3 foi de sticlă)
Încălzire în pardoseală cu centrală pe gaz.
Izolație foarte bună și construcție solidă. Materiale de calitate, lucrări executate profesionist.
Avantaje suplimentare: Poziționare într-o zonă liniștită, cu acces facil către Sibiu. Curte spațioasă, ideală pentru grădină, loc de joacă sau relaxare. Casă luminoasă, eficientă energetic și economică pe termen lung. Această proprietate reprezintă alegerea perfectă pentru cei care își doresc confort, intimitate, eficiență și un stil de viață modern într-o comunitate liniștită.
Pentru informații suplimentare și programarea unei vizionări, nu ezitați să ne contactați.
Citeste mai mult
Imobilul se află în Selimbar, într-o zonă liniștită și apreciată, și este în stadiu de constructie, urmând să fie predat la cheie la exterior și la alb în interior.
Caracteristici principale:
Suprafață utilă: 110 mp.
Teren: 250 mp.
Curte liberă: aprox. 150 mp.
Compartimentare ideală pentru familie. Living generos. 3 dormitoare, Bucătărie separată. Baie principală + WC de serviciu
Dotări și beneficii:
Caracteristici importante ale proprietății:
Acces din stradă asfaltată, cu iluminat public
Placă de beton armat inclusiv peste etaj
Zidărie exterioară din cărămidă Porotherm de 30 cm, cu pereți dubli intre duplexuri și izolație din polistiren extrudat între zidării
Fațadă izolată cu polistiren grafitat de 15 cm
Izolație termică sub încălzirea din pardoseală:
Acoperiș cu țiglă de beton Bramac Alpina P5
Structura acoperișului realizată din lemn tratat cu Bochemit
Ferestre tripan (3 foi de sticlă)
Încălzire în pardoseală cu centrală pe gaz.
Izolație foarte bună și construcție solidă. Materiale de calitate, lucrări executate profesionist.
Avantaje suplimentare: Poziționare într-o zonă liniștită, cu acces facil către Sibiu. Curte spațioasă, ideală pentru grădină, loc de joacă sau relaxare. Casă luminoasă, eficientă energetic și economică pe termen lung. Această proprietate reprezintă alegerea perfectă pentru cei care își doresc confort, intimitate, eficiență și un stil de viață modern într-o comunitate liniștită.
Pentru informații suplimentare și programarea unei vizionări, nu ezitați să ne contactați.
Specificatii
Curent
Apa
Canalizare
Gaz
Centrala proprie
Incalzire pardoseala
Izolatie Exterior
Vopsea lavabila
Ferestre Termopan
Usa intrare Metal
Bucatarie Nemobilata
Apometre
Contor gaz
Nemobilat