






Apartament NOU 3 camere etaj 4 cu lift - zona Calea Surii Mici
Sibiu
125.000€ + TVA
Camere
3
Suprafata utila
68.21 mp
Suprafata construita
81.85 mp
Etaj
Etaj 4
Bai
2
An constructie
2027
Razvan Bolboaca
0773367642
Esti interesat de aceasta proprietate ?
- ID:P7560
- Nr. camere:3
- Nr. dormitoare:2
- S. utila:68.21 mp
- S. balcoane:6.90 mp
- S. construita:81.85 mp
- Comp.:Decomandat
- Confort:1
- Etaj:Etaj 4
- Nr. bucatarii:1
- Nr. bai:2
- Nr. balcoane:1
- An constructie:2027
- Structura:Caramida
- Tip imobil:Bloc
- Regim inaltime:P+6
- Orientare:Sud-Est
- Clasa energetica:A
Descriere
Vă propunem spre vânzare un apartament modern cu 3 camere, luminos și eficient compartimentat, situat în noul ansamblu Valletta Park 2.0, pe Calea Șurii Mici – una dintre cele mai dinamice și promițătoare zone de dezvoltare ale Sibiului.
Proiectul Valletta Park 2.0 continuă succesul primei etape Valletta Park și aduce un nivel superior de confort, eleganță și funcționalitate. Ansamblul este format din 6 blocuri moderne, cu 196 de apartamente de 2, 3 și 4 camere, parcare subterană și boxe de depozitare.
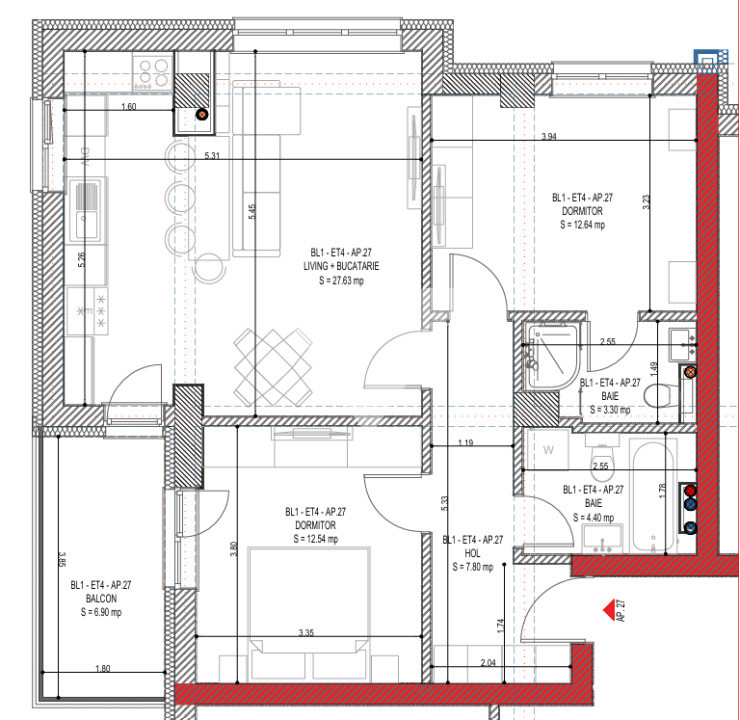
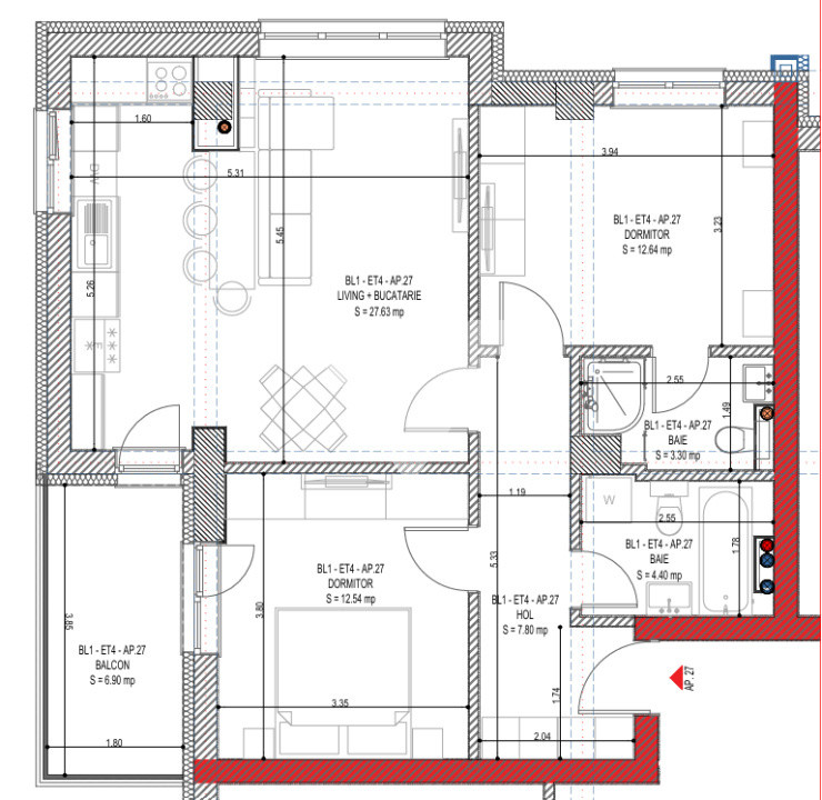
Locuința este amplasată la etajul 4 al unui imobil modern cu șase niveluri, dotat cu lift, având orientare însorită și o suprafață utilă de 68,21 mp, la care se adaugă un balcon generos de 6,90 mp. Compartimentarea este următoarea:
- hol de acces;
- living luminos cu bucătărie de tip open-space;
- două dormitoare generoase;
- doua bai;
- balcon.
Imobilul este construit exclusiv cu materiale de înaltă calitate și va fi predat la exterior finisat la cheie, cu străzi asfaltate și iluminate, locuri de parcare amenajate și spațiu de joacă pentru copii. Accesul în ansamblu este securizat prin barieră automată și videointerfon, iar locatarii beneficiază de parcări supraterane și subterane, precum și de stații de încărcare pentru mașini electrice. Clădirea dispune de izolație termică eficientă, casă a scării complet finisată și infrastructură modernă care asigură un mediu sigur, confortabil și funcțional.
Stadiul de predare este LA ALB cu:
- Pereți tencuiți, gletuiți, amorsă și strat de vopsea lavabilă albă;
- Pardoseli cu șapă mecanizată;
- Tâmplărie din PVC cu 3 foi de sticlă și profil de 5 camere;
- Instalații electrice, tablou electric curenți tari și curenți slabi;
- Încălzire în pardoseală Uponor;
- Infrastructură cablată pentru termostate;
- Contoare de utilități montate (apometru, electric, gaz);
- Videointerfon;
- Ușă metalică la intrare;
Optional se poate finisa si LA CHEIE direct de catre dezvoltator cu:
- Gresie, faianță, parchet
- Uși de interior
- Obiecte sanitare
- Prize și întrerupătoare
Pret: 125.000 € + TVA
Opțional, se pot achiziționa:
- Parcare supraterană – 5.000 € (TVA inclus)
- Parcare subterană – 10.000 € (TVA inclus)
- Boxă de depozitare – 1.200 €/mp (TVA inclus)
Nu rata șansa!
Visul e la tine, cheia e la noi !
Citeste mai mult
Proiectul Valletta Park 2.0 continuă succesul primei etape Valletta Park și aduce un nivel superior de confort, eleganță și funcționalitate. Ansamblul este format din 6 blocuri moderne, cu 196 de apartamente de 2, 3 și 4 camere, parcare subterană și boxe de depozitare.
Locuința este amplasată la etajul 4 al unui imobil modern cu șase niveluri, dotat cu lift, având orientare însorită și o suprafață utilă de 68,21 mp, la care se adaugă un balcon generos de 6,90 mp. Compartimentarea este următoarea:
- hol de acces;
- living luminos cu bucătărie de tip open-space;
- două dormitoare generoase;
- doua bai;
- balcon.
Imobilul este construit exclusiv cu materiale de înaltă calitate și va fi predat la exterior finisat la cheie, cu străzi asfaltate și iluminate, locuri de parcare amenajate și spațiu de joacă pentru copii. Accesul în ansamblu este securizat prin barieră automată și videointerfon, iar locatarii beneficiază de parcări supraterane și subterane, precum și de stații de încărcare pentru mașini electrice. Clădirea dispune de izolație termică eficientă, casă a scării complet finisată și infrastructură modernă care asigură un mediu sigur, confortabil și funcțional.
Stadiul de predare este LA ALB cu:
- Pereți tencuiți, gletuiți, amorsă și strat de vopsea lavabilă albă;
- Pardoseli cu șapă mecanizată;
- Tâmplărie din PVC cu 3 foi de sticlă și profil de 5 camere;
- Instalații electrice, tablou electric curenți tari și curenți slabi;
- Încălzire în pardoseală Uponor;
- Infrastructură cablată pentru termostate;
- Contoare de utilități montate (apometru, electric, gaz);
- Videointerfon;
- Ușă metalică la intrare;
Optional se poate finisa si LA CHEIE direct de catre dezvoltator cu:
- Gresie, faianță, parchet
- Uși de interior
- Obiecte sanitare
- Prize și întrerupătoare
Pret: 125.000 € + TVA
Opțional, se pot achiziționa:
- Parcare supraterană – 5.000 € (TVA inclus)
- Parcare subterană – 10.000 € (TVA inclus)
- Boxă de depozitare – 1.200 €/mp (TVA inclus)
Nu rata șansa!
Visul e la tine, cheia e la noi !
Specificatii
Curent
Apa
Canalizare
Gaz
Centrala imobil
Incalzire pardoseala
Izolatie Exterior
Vopsea lavabila
Ferestre Termopan
Usa intrare Metal
Boxa la subsol
Apometre
Contor gaz
Videointerfon
Lift