











Aceasta proprietate a fost deja vanduta! Pentru oferte similare contactati agentul
Apartament 3 camere 83 mp de vanzare Bvd. Mihai Viteazu Sibiu
Sibiu, Mihai Viteazul
129.500€
Camere
3
Suprafata utila
83 mp
Suprafata construita
100 mp
Etaj
Etaj 5
Bai
1
An constructie
1980
Razvan Craciun
+40755227352
Esti interesat de aceasta proprietate ?
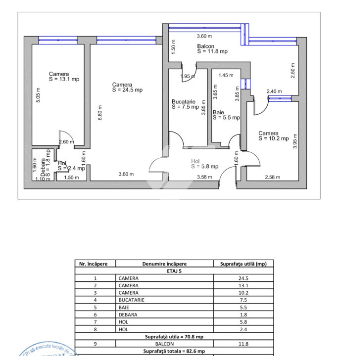
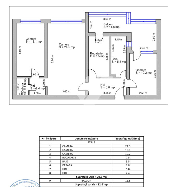
- ID:P7286
- Nr. camere:3
- Nr. dormitoare:2
- S. utila:83.00 mp
- S. balcoane:12.00 mp
- S. construita:100.00 mp
- Comp.:Decomandat
- Confort:1
- Etaj:Etaj 5
- Nr. bucatarii:1
- Nr. bai:1
- Nr. balcoane:1
- An constructie:1980
- Structura:Beton
- Tip imobil:Bloc
- Regim inaltime:P+10
- Orientare:Vest
Descriere
Va propunem spre vanzare un apartament spatios cu 3 camere aflat la etajul 5 al unui imobil foarte bine ingrijit cu 10 nivele dotat cu lift nou situat langa Biserica de pe Bvd. Mihai Viteazul din Sibiu reper str. Nicolae Iorga.
Locuinta detine o suprafata utila totala de 83 mp compusa astfel:
- hol de acces, living spatios, bucatarie separata, doua dormitoare, baie mare cu geam, debara si un balcon tip logie inchis cu geam termopan in suprafata de 12 mp
- separat de aceste spatii detine si o pivnita inalta la subsolul blocului
Zona foarte bine cotata pe piata imobiliara din Sibiu, punand la dispozitie numeroase locuri de parcare si acces la doar cateva minute fata de Centrul Istoric, institutii de invatamant, facultati, locuri de joaca pentru copii, statii de transport in comun, Centrul Comercial si Piata Rahovei.
Apartamentul este izolat termic si pozitionat pe partea insorita ceea ce va oferi noului proprietar costuri minime de intretinere.
Este liber de sarcini si se poate achizitiona si prin credit bancar.
Ideal si pentru investitie!
Pret: 129.500 EUR
Pentru mai multe detalii si vizionari ne puteti contacta la numarul de telefon afisat.
Citeste mai mult
Locuinta detine o suprafata utila totala de 83 mp compusa astfel:
- hol de acces, living spatios, bucatarie separata, doua dormitoare, baie mare cu geam, debara si un balcon tip logie inchis cu geam termopan in suprafata de 12 mp
- separat de aceste spatii detine si o pivnita inalta la subsolul blocului
Zona foarte bine cotata pe piata imobiliara din Sibiu, punand la dispozitie numeroase locuri de parcare si acces la doar cateva minute fata de Centrul Istoric, institutii de invatamant, facultati, locuri de joaca pentru copii, statii de transport in comun, Centrul Comercial si Piata Rahovei.
Apartamentul este izolat termic si pozitionat pe partea insorita ceea ce va oferi noului proprietar costuri minime de intretinere.
Este liber de sarcini si se poate achizitiona si prin credit bancar.
Ideal si pentru investitie!
Pret: 129.500 EUR
Pentru mai multe detalii si vizionari ne puteti contacta la numarul de telefon afisat.
Specificatii
Curent
Apa
Canalizare
Centrala proprie
Calorifere
Bloc izolat termic
Vopsea lavabila
Parchet
Ferestre Termopan
Usa intrare Metal
Boxa la subsol
Debara
Bucatarie Mobilata
Bucatarie Utilata
Apometre
Contor gaz
Interfon
Lift